Museen im Union-Turm - Dortmund


DATEN


Auslober

Stadt Dortmund

Architekt

Gauselmann Richter Architekten

Planung

2006

PROJEKT


Wettbewerb

Umnutzung des denkmalgeschützten Kellereihochhauses der Union-Brauerei in ein Museum für moderne Kunst mit den Bereichen:

- Kindermuseum
- Wechselausstellungen
- Sammlung Museum am Ostwall
- Filiale der Nationalgalerie Berlin

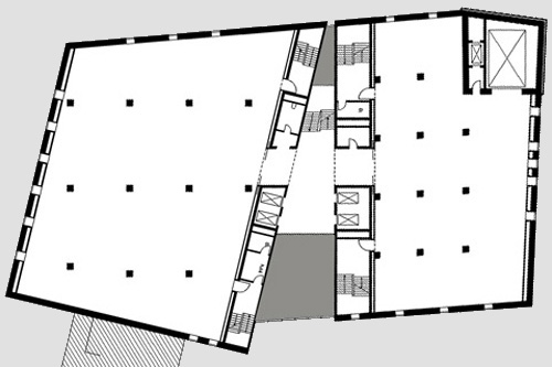
Der ehemals geschlossene, abweisende Charakter des Industriebaus wird durch einen beherzten Einschnitt aufgebrochen. Hier öffnet sich das Gebäude nach außen mit dem belebten Bereich der zentralen vertikalen Erschließungshalle.

Das Gebäude wird durch das Einschneiden einer neuen Erschließungszone in zwei tragkonstruktiv eigenständige Bereiche geteilt. Die Aussteifung ist in jedem Teil durch je drei Außenwände gewährleistet.

Die Kathedrale soll stützenfrei werden. Dazu sollen Fachwerke mit räumlicher Unterspannung ergänzt werden. Die Entfernung einer Deckenplatte wurde geplant. Die vorhandenen Stützen sind mit der neuen Knicklänge 2 x l weiterhin tragfähig.

Außenansicht
Einschnitt
Ausblick
Schnitt
Kathedrale
Kathedrale